BUSSE IMMOBILIEN
Gutenbergstraße 11 | 21465 Reinbek
Strandnahe 2-Zi.-Whg. mit Terrasse in St. Peter-Ording. Meeresluft, Dünen & Erholung inkl.!
25826 Sankt Peter Ording, Terrassenwohnung zum Kauf
Objektdaten
- Objekt-IDKauf-Wohnung-2026-102
- ObjekttypenTerrassenwohnung, Wohnung
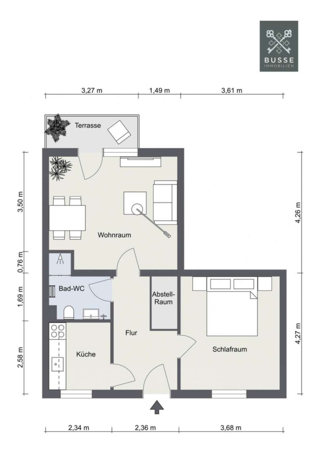
- AdresseSandkamp 4 (Whg 12)
25826 Sankt Peter Ording - Etagen im Haus2
- Wohnfläche ca.58,58 m²
- Nutzfläche ca.3 m²
- Zimmer2
- Schlafzimmer1
- Badezimmer1
- KücheEinbauküche
- Wesentlicher EnergieträgerStrom
- Baujahr1970
- Zustandmodernisiert
- Ausstattunggehoben
- Stellplätze gesamt1
- Käuferprovision5,95 % inkl. MwSt. nach erfolgreicher Beurkundung.
Die Maklercourtage beträgt je Partei 2,975 Prozent inkl. MwSt. Sie ist mit erfolgreicher Beurkundung verdient und fällig. - Kaufpreis348.000 EUR
Ausstattung / Merkmale
- ✓ Balkon/Terrasse
- ✓ Barrierefrei
- ✓ Einbauküche
- ✓ Garten/Gartennutzung
Energieausweis
- EnergieausweistypBedarfsausweis
- Ausstellungsdatumnach dem 1.5.2014
- Baujahr lt. Energieausweis1970
- PrimärenergieträgerStrom
- EnergieeffizienzklasseD
Objektbeschreibung
Beschreibung
Erdgeschoss-Refugium in SPO - Wohnen mit eigener Terrasse, Meeresluft und perfekter Infrastruktur. Hier wohnen Sie in ruhiger Bestlage, nur wenige Schritte vom traumhaften Sandstrand entfernt, und genießen gleichzeitig alle Vorzüge des lebendigen Kurortes.
OBJEKTBESCHREIBUNG
Diese Erdgeschosswohnung in einer der gefragtesten Lagen von St. Peter-Ording bringt genau das Gefühl zurück, das viele hier suchen: ankommen, durchatmen, loslassen. Wenn Sie über den Deich gehen, spüren Sie die salzige Nordseeluft im Gesicht. Das Meer ist in Reichweite, die Ruhe mitten im Trubel eines Ortes, der so viel zu bieten hat. Geschäfte, Restaurants, Cafés und kleine Boutiquen liegen nur wenige Schritte entfernt.
Die Wohnung selbst empfängt Sie über einen eigenen Zugang und wirkt schon beim Eintreten angenehm klar und modern. Der Wohn- und Essbereich öffnet sich zur sonnigen Terrasse mit Strandkorb, wo man von morgens bis abends entspannt sitzen kann. Das moderne Duschbad – mit Sitzmöglichkeit, Fußbodenwärme und Handtuchheizung – macht die Wohnung besonders komfortabel. Gerade für das ältere Semester ein großer Pluspunkt.
Die hochwertige, vollständig ausgestattete Echtholz-Einbauküche, die geschmackvolle Möblierung und der pflegeleichte Designfloor-Boden schaffen ein stimmiges Gesamtbild. Sie können direkt einziehen und Ihren WOHNTRAUm in St.-Peter Ording genießen!
Ein eigener PKW-Stellplatz direkt am Haus gehört ebenfalls zur Wohnung und macht das Angebot perfekt. Fordern Sie jetzt unser Ausführliches Exposé an.
Ausstattung
Die Wohnung präsentiert sich in einem modernen und sehr gepflegten Zustand. Sie profitieren von einer stilvollen Ausstattung, die Komfort und Funktionalität perfekt miteinander verbindet.
Entdecke Sie die Details:
- Wohnfläche: ca. 58,58 m²
- Terrasse mit Strandkorb
- PKW-Stellplatz am Haus
- Nichtraucherwohnung
- Modernes Duschbad mit Fußboden- und Handtuchheizung
- mit Designfloor-Bodenbelag,
- Echtholz Einbauküche mit hochglänzender Küchenzeile, Herd, Backofen und Geschirrspüler und vielem mehr ...
Unser Fazit:
Diese Wohnung ist ein rundum stimmiges Angebot für alle, die eine hochwertige Immobilie in absoluter Toplage suchen. Und das schöne ist: Luftige Nordseebrise inklusive.
Sonstiges
MAKLERCOURTAGE
Der Maklervertrag mit uns kommt durch die Bestätigung der Inanspruchnahme unserer Maklertätigkeit in Textform zustande, wie z.B. insbesondere die Unterschrift des Suchkundenvertrages und/oder des Objekt-Exposés. Die Höhe der Courtage richtet sich nach den ab dem 23.12.2020 in Kraft getretenen gesetzlichen Regelungen zur Teilung der Maklercourtage. Hiernach wird die Courtage regelmäßig für beide Parteien (Eigentümer und Käufer) in Höhe von 2,975 % inklusive Umsatzsteuer in jeweils geltender Höhe derzeit also 5,95 % des Kaufpreises inkl. Umsatzsteuer bei notariellem Vertragsabschluss verdient und fällig. Die Höhe der Bruttocourtage unterliegt einer Anpassung bei Steuersatzänderung. Grunderwerbssteuer, Notar- und Gerichtskosten trägt der Käufer.
SONSTIGES
Als Immobilienmaklerunternehmen ist die BUSSE-IMMOBILIEN e.K. nach § § 1, 2 Abs. 1 Nr. 10, 4 Abs. 3 Geldwäschegesetz (GwG) dazu verpflichtet, vor Begründung einer Geschäftsbeziehung die Identität des Vertragspartners festzustellen und zu überprüfen. Hierzu ist es erforderlich, dass wir die relevanten Daten Ihres Personalausweises festhalten beispielsweise mittels einer Kopie. Das Geldwäschegesetz (GwG) sieht vor, dass der Makler die Kopien bzw. Unterlagen fünf Jahre aufbewahren muss.
Wir weisen darauf hin, dass die von uns weitergegebenen Objektinformationen, Unterlagen, Pläne etc. von Dritten stammen. Eine Haftung für die Richtigkeit oder Vollständigkeit der Angaben übernehmen wir daher nicht. Es obliegt daher unseren Kunden, die darin enthaltenen Objektinformationen und Angaben auf ihre Richtigkeit hin zu überprüfen. Alle Immobilienangebote sind freibleibend und vorbehaltlich Irrtümer, Zwischenverkauf- und Vermietung oder sonstiger Zwischenverwertung. Behandeln Sie den Inhalt bitte vertraulich und geben Sie ohne unser Einverständnis das Angebot nicht an Dritte weiter. Bei Weitergabe an Dritte oder wenn Sie sich direkt mit dem Eigentümer in Verbindung setzen, haften Sie für unsere Courtage in voller Höhe. Im Übrigen setzen wir Ihr Einverständnis voraus, dass wir bei der Aufnahme von Verhandlungen auch für Sie tätig sein dürfen. Ist Ihnen das von uns nachgewiesene Objekt bereits bekannt, haben Sie uns dieses unverzüglich, spätestens innerhalb von 5 Tagen, mitzuteilen und nachzuweisen. Ansonsten betrachten wir unser Angebot als Erstnachweis.
Bei Busse-Immobilien sind Sie von Anfang an in guten Händen. Wir stehen für engagierten und professionellen Verkauf von Immobilien und eine ganz persönliche Betreuung. Eine seriöse, diskrete und stilvolle Vermittlungsarbeit, mit Expertise, Professionalität, Herz und Leidenschaft: Das ist der Anspruch an uns und unser Versprechen an Sie.
Wir freuen uns auf Sie!
Lage
Die Lage gehört zu den stärksten Argumenten dieser Wohnung. Sie wohnen in einem der beliebtesten Quartiere von St. Peter-Ording, nur wenige Minuten vom Deich entfernt. Ein kurzer Spaziergang genügt und Sie stehen im Sand, hören die Brandung und riechen das Salz des Meeres. Gleichzeitig genießen Sie volle Infrastruktur ganz ohne Auto. Einkäufe erledigen Sie zu Fuß, Restaurants und Cafés liegen in direkter Nachbarschaft und die medizinische Versorgung ist ebenfalls hervorragend angebunden.
Hier verbinden sich Erholung, Lebensqualität und Investitionssicherheit auf ideale Weise. Wer St. Peter-Ording schätzt, findet in dieser Wohnung ein Zuhause, das genau den richtigen Ton trifft.
Wenn Sie noch eine Version für die Ferienvermietung wünschen oder die Texte stärker auf Kapitalanleger zuschneiden möchten, passe ich Ihnen das gern an.






















