BUSSE IMMOBILIEN
Gutenbergstraße 11 | 21465 Reinbek
Möblierte 2-Zi.-Whg. mit Terrasse u. Stellplatz in St. Peter-Ording. Meer, Dünen & Erholung inkl.!
25826 Sankt Peter-Ording, Erdgeschosswohnung zur Miete
Objektdaten
- Objekt-IDMiete-Wohnung-2026-101
- ObjekttypenErdgeschosswohnung, Wohnung
- Adresse25826 Sankt Peter-Ording
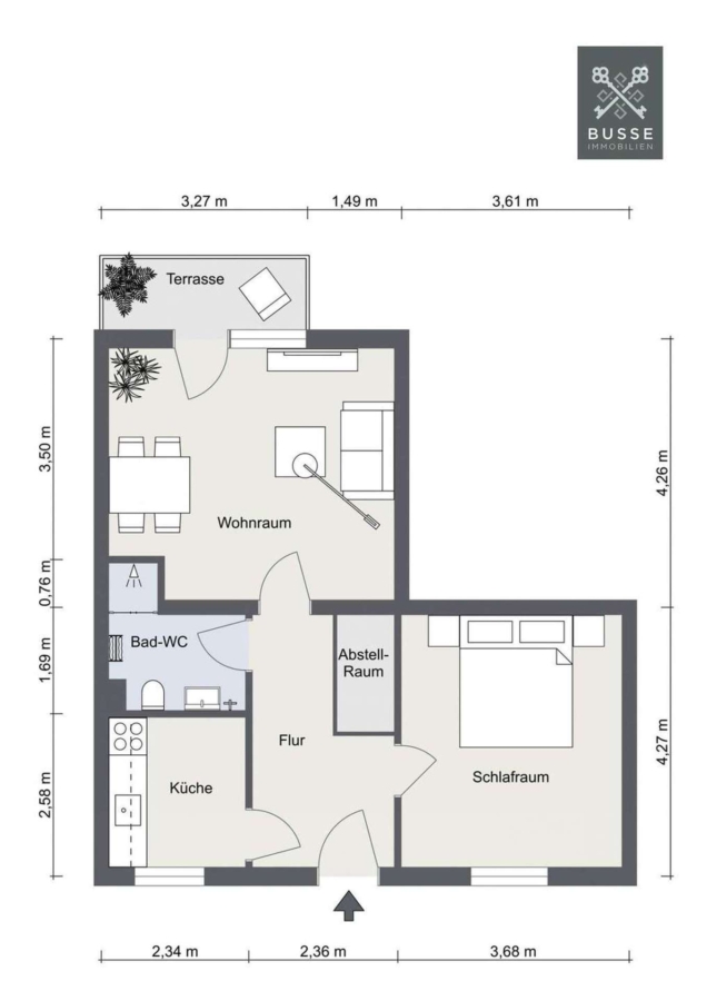
- Wohnfläche ca.58,58 m²
- Nutzfläche ca.3 m²
- Zimmer2
- Schlafzimmer1
- Badezimmer1
- KücheEinbauküche
- Wesentlicher EnergieträgerStrom
- Baujahr1970
- Letzte Modernisierung2022
- Zustandmodernisiert
- Ausstattunggehoben
- Haustierenach Vereinbarung
- Stellplätze gesamt1
- Kautiondrei Netto-Kaltmieten
- Kaltmiete990,00 EUR
- Nebenkosten300,00 EUR
- Heizkostenin den Nebenkosten enthalten
- Warmmiete1.290,00 EUR
Ausstattung / Merkmale
- ✓ Außenstellplatz
- ✓ Balkon/Terrasse
- ✓ Barrierefrei
- ✓ Einbauküche
Energieausweis
- EnergieausweistypBedarfsausweis
- Ausstellungsdatumnach dem 1.5.2014
- Baujahr lt. Energieausweis1970
- PrimärenergieträgerStrom
- Endenergiebedarf122,10 kWh/(m²·a)
- EnergieeffizienzklasseD
Objektbeschreibung
Beschreibung
Sie suchen eine moderne, voll möblierte Wohnung in einer der begehrtesten Lagen an der Nordseeküste? Dann ist dieses Schmuckstück in St. Peter-Ording genau das Richtige für Sie. Die 2-Zimmer-Eigentumswohnung überzeugt mit einer hochwertigen Ausstattung, u.a. mit Designfloor-Bodenbelag, einer durchdachten Raumaufteilung und einer kleinen Terrasse mit eigenem Strandkorb. Hier wohnen Sie in ruhiger Bestlage, nur wenige Schritte vom traumhaften Sandstrand entfernt, und genießen gleichzeitig alle Vorzüge des lebendigen Kurortes.
OBJEKTBESCHREIBUNG:
Die Wohnung befindet sich in St. Peter-Ording Dorf, in unmittelbarer Nähe zum Dünengürtel. Mit rund 58,58 m² Wohnfläche bietet sie ein modernes und behagliches Zuhause für Singles, Paare oder als Ferienimmobilie für maximale Erholung.
Das Herzstück ist der helle Wohn- und Essbereich mit direktem Zugang zur kleinen Terrasse, die mit einem eigenen Strandkorb ausgestattet ist. Hier können Sie die frische Nordseeluft in privater Atmosphäre genießen. Die offene, moderne Echtholz-Einbauküche mit hochglänzender Küchenzeile fügt sich stilvoll in den Raum ein und ist mit Herd, Backofen und Geschirrspüler ausgestattet.
Ein komfortables Schlafzimmer, ein modernes Duschbad mit Fußboden- und Handtuchheizung sowie praktische Abstellmöglichkeiten runden das Raumangebot ab. Sie können direkt einziehen oder sofort mit der Nutzung der Immobilie starten!
Ein eigener PKW-Stellplatz direkt am Haus gehört ebenfalls zur Wohnung und macht das Angebot perfekt.
Ausstattung
Die Wohnung präsentiert sich in einem modernen, gepflegten Zustand und wird vollständig möbliert übergeben. Sie profitieren von einer stilvollen Ausstattung, die Komfort und Funktionalität perfekt miteinander verbindet.
Vermietung erfolgt möbliert, mit einer Mindestmietzeit von drei Monaten.
Entdecke Sie die Details:
- Wohnfläche: ca. 58,58 m²
- Terrasse mit Strandkorb
- PKW-Stellplatz am Haus
- Nichtraucherwohnung
- Modernes Duschbad mit Fußboden- und Handtuchheizung
- mit Designfloor-Bodenbelag,
- Echtholz Einbauküche mit hochglänzender Küchenzeile, Herd, Backofen und Geschirrspüler
- Komplett möbliert. Ab den 01.01.2026 frei
Unser Fazit:
Diese Wohnung ist ein rundum stimmiges Angebot für alle, die eine hochwertige Immobilie in absoluter Toplage suchen. Luftige Nordseebrise inklusive.
Sonstiges
Vermietung ausschließlich als möbliertes Wohnen auf Zeit, Mindestmietdauer 3 Monate, Verlängerung nach Absprache möglich.
Als Immobilienmaklerunternehmen ist die BUSSE-IMMOBILIEN e.K. nach § § 1, 2 Abs. 1 Nr. 10, 4 Abs. 3 Geldwäschegesetz (GwG) dazu verpflichtet, vor Begründung einer Geschäftsbeziehung die Identität des Vertragspartners festzustellen und zu überprüfen. Hierzu ist es erforderlich, dass wir die relevanten Daten Ihres Personalausweises festhalten beispielsweise mittels einer Kopie. Das Geldwäschegesetz (GwG) sieht vor, dass der Makler die Kopien bzw. Unterlagen fünf Jahre aufbewahren muss.
Wir weisen darauf hin, dass die von uns weitergegebenen Objektinformationen, Unterlagen, Pläne etc. von Dritten stammen. Eine Haftung für die Richtigkeit oder Vollständigkeit der Angaben übernehmen wir daher nicht. Es obliegt daher unseren Kunden, die darin enthaltenen Objektinformationen und Angaben auf ihre Richtigkeit hin zu überprüfen. Alle Immobilienangebote sind freibleibend und vorbehaltlich Irrtümer, Zwischenverkauf- und Vermietung oder sonstiger Zwischenverwertung. Behandeln Sie den Inhalt bitte vertraulich und geben Sie ohne unser Einverständnis das Angebot nicht an Dritte weiter. Bei Weitergabe an Dritte oder wenn Sie sich direkt mit dem Eigentümer in Verbindung setzen, haften Sie für unsere Courtage in voller Höhe. Im Übrigen setzen wir Ihr Einverständnis voraus, dass wir bei der Aufnahme von Verhandlungen auch für Sie tätig sein dürfen. Ist Ihnen das von uns nachgewiesene Objekt bereits bekannt, haben Sie uns dieses unverzüglich, spätestens innerhalb von 5 Tagen, mitzuteilen und nachzuweisen. Ansonsten betrachten wir unser Angebot als Erstnachweis.
Bei Busse-Immobilien sind Sie von Anfang an in guten Händen. Wir stehen für engagierten und professionellen Verkauf von Immobilien und eine ganz persönliche Betreuung. Eine seriöse, diskrete und stilvolle Vermittlungsarbeit, mit Expertise, Professionalität, Herz und Leidenschaft: Das ist der Anspruch an uns und unser Versprechen an Sie.
Wir freuen uns auf Sie!
Lage
St. Peter-Ording ist bekannt für seinen einzigartigen Mix aus Tradition und Moderne, maritimem Flair und großem Erholungspotenzial. Der Badeort zählt zu den beliebtesten Ferienzielen an der deutschen Nordseeküste und liegt im Norden der Metropolregion Hamburg, eingebettet zwischen Marsch, Geest und Meer.
Die verkehrsgünstige Anbindung über Heide an die A23 macht St. Peter-Ording zum idealen Standort für Ruhesuchende, Pendler und Urlauber. Die Einheimischen sind entspannt, gelassen und wissen die Vorzüge der frischen Nordseeluft ebenso zu schätzen wie die Gäste des Ortes.
Die zentrale Lage der Immobilie direkt hinter dem Dünengürtel ist ein besonderes Highlight: Nur wenige Schritte trennen Sie vom weiten Sandstrand. Gleichzeitig sind sämtliche Einkaufsmöglichkeiten, Restaurants, Ärzte und Cafés im Dorf bequem erreichbar. Auch Freizeitangebote wie Wassersport, Reiten oder Radtouren durch die Dünenlandschaft liegen praktisch vor der Haustür.
Darüber hinaus bietet die Region zahlreiche Ausflugsmöglichkeiten: der berühmte Leuchtturm von Westerhever, die Seehundstation Friedrichskoog, das historische Friedrichstadt oder das Nordseebad Büsum sind nur wenige Fahrminuten entfernt. Schulen, Kindergärten und vielfältige Sport- und Kulturangebote machen St. Peter-Ording zudem zu einem attraktiven Standort für jedes Alter.
Die dargestellte Position der Immobilie ist nur eine ungefähre Angabe.






















